I've been trying to get my head around how it all fits together.... I believe it is as follows.
The grey floor plans are from the Sharks licensing application, and show only the western section of the development, where the club is located.
I generally show those first, they have the stadium (west) at the top of the picture. Then I show how it fits in with the retail maps, which have Woolooware Bay (north) at the top of the picture. A little bit confusing but I won't change any further!
Ground Level
Sharks have part of this space for game day bars and equipment and office space (everything in dark blue outline below).
Bay Central has the rest for Aldi, Dan Murphys, parking
Licensing map below shows the western section of the development, with the stadium at the top.
Below shows this combined with the retail ground floor, with Woolooware Bay (north) at the top
- The leagues club section (orientated towards the north). Not an exact fit
- The retail part of the Ground Level... note that Aldi and UFC gym are in the western section that the leagues club is in.
Level 1
This is basically all part of Bay Central, with nothing really belonging to the Sharks. It includes most of the retail shops and restaurants, including Golden Bay Asian with views over the ground in north-west corner.
The licensing map below shows the western section of the retail, with the stadium at the top:
Below shows the retail map, where the left section basically corresponds to the above, but oriented with Woolooware Bay (north) at the top.
Golden Bay has the green arrow. Note that everything on the west side of the main retail walkway (Burger Point, Golden Bay, Panetta Mercato) is underneath the main floor of the new leagues club.
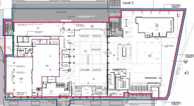
Level 2
This is basically all Sharks, and is the main part of the club, including the outdoor terrace, dining, gaming, cafe.
This is the licensing map with the stadium at the top of the picture:
This is basically the first floor of the old yellow building that sticks up from the car park,
For Bay Central, the only thing on this floor is the car parking to the east, and the driveway where you enter from Woolooware Bay, and go up to the residential.
Below is the same map with north at the top:
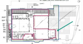
Level 3
This is where the function rooms are, and hopefully post-match presentations. It only takes up part of the footprint (the rest of the space is the air space above the rooftop terrace). There is a very small outdoor deck at the north-east corner, attached to the function room (green arrow). This shows the West (stadium) at the top.
This is the second floor of the old yellow building that sticks up from the car park,
For Bay Central, the only thing on this floor is the car parking to the east.
Below is the same map with north at the top:
Summary

Or this newer image, showing the terrace and function rooms better:
This is my understanding of Level 2 and 3 of the Leagues club as seen from the Bay Central car park
s